• HOME
  • PORTFOLIO
    • ALL
    • TOWN
    • COUNTRY
  • SERVICES
  • EDITORIAL
  • PRACTICE
    • ABOUT
    • LATEST
    • RECRUITMENT
    • TESTIMONIALS
  • CONTACT
  • HOME
  • PORTFOLIO
    • ALL
    • TOWN
    • COUNTRY
  • SERVICES
  • EDITORIAL
  • PRACTICE
    • ABOUT
    • LATEST
    • RECRUITMENT
    • TESTIMONIALS
  • CONTACT
  • HOME
  • PORTFOLIO
    • ALL
    • TOWN
    • COUNTRY
  • SERVICES
  • EDITORIAL
  • PRACTICE
    • ABOUT
    • LATEST
    • RECRUITMENT
    • TESTIMONIALS
  • CONTACT
Castelnau, Barnes
Castelnau, Barnes

Castelnau, Barnes

Richmond-Upon-Thames

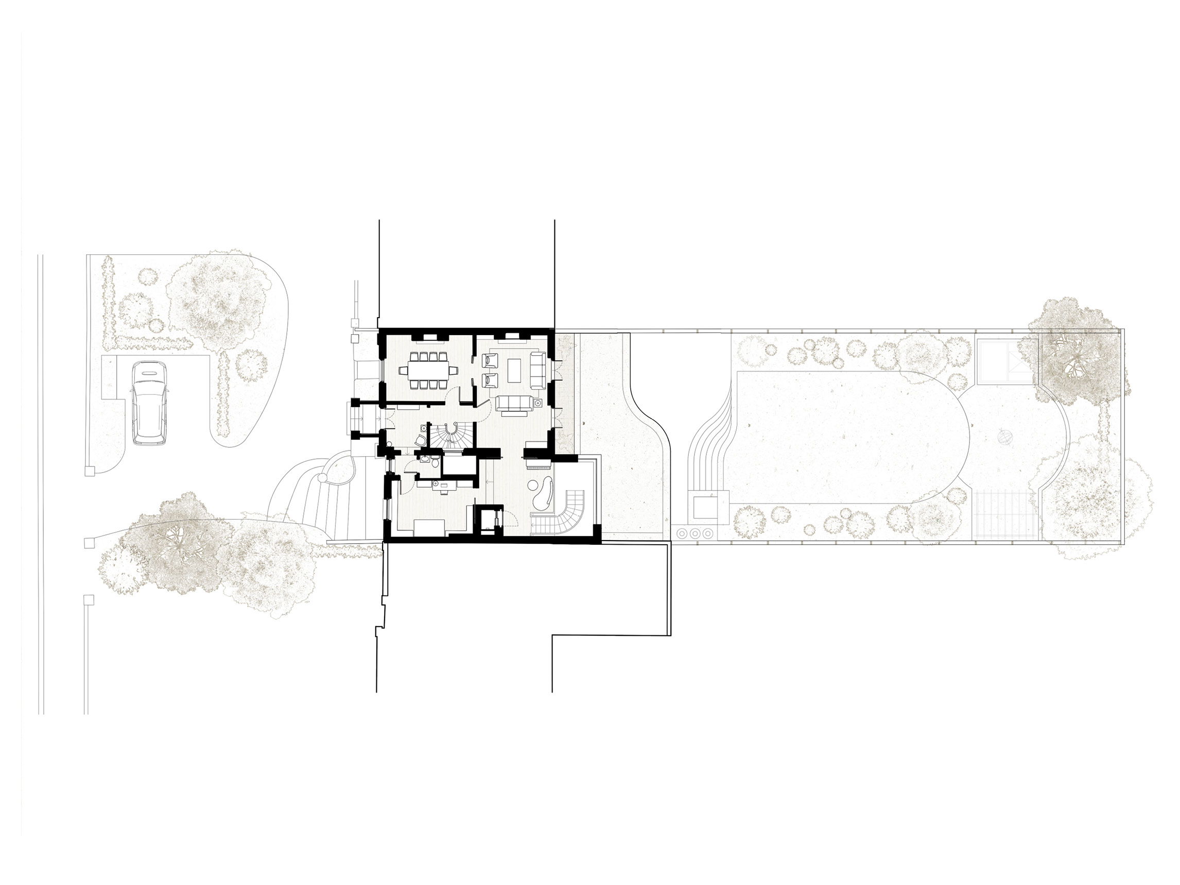
Project summary: Planning & listed building consent has been secured to extend and renovate a Grade II listed house in Richmond, SW London.

The property is a Grade II listed building in the Castelnau Conservation Area in Barnes South West London, which required a sensitive and experienced approach towards the overall design and planning / listed building process.

The front elevation and interior of the 18th century family home have been preserved and restored in its complete original classical style and composition. The regency style townhouse is constructed of yellow stock bricks, and framed by two full-height decorative stucco pilasters on each side.

The new contemporary extension is clearly distinguished from the traditional façade. To the rear of the property a contemporary glazed extension featuring dark metal cladding with a curved roof  has been approved to ensure a clear and coordinated connection with the redesigned garden.

Internally the house is being re-planned throughout, to provide a 21st century family home, whilst ensuring key period features of architectural merit are retained.

Click the link to see the project featured in Listed Property Owners Club Magazine

Status: Completed.

Castelnau, Barnes
Castelnau, Barnes Castelnau, Barnes
Castelnau, Barnes
Castelnau, Barnes Castelnau, Barnes
Castelnau, Barnes
Castelnau, Barnes Castelnau, Barnes
Castelnau, Barnes
Castelnau, Barnes
Castelnau, Barnes
Castelnau, Barnes
Castelnau, Barnes
Castelnau, Barnes
Alex Tart Architects
Copyright © 2026 Alex Tart Architects
Alex Tart Architects is a Limited Company
Registration No: 08710583 VAT No: 192158496

peinterest-logo instagran-logo riba arb