• HOME
  • PORTFOLIO
    • ALL
    • TOWN
    • COUNTRY
  • SERVICES
  • EDITORIAL
  • PRACTICE
    • ABOUT
    • LATEST
    • RECRUITMENT
    • TESTIMONIALS
  • CONTACT
  • HOME
  • PORTFOLIO
    • ALL
    • TOWN
    • COUNTRY
  • SERVICES
  • EDITORIAL
  • PRACTICE
    • ABOUT
    • LATEST
    • RECRUITMENT
    • TESTIMONIALS
  • CONTACT
  • HOME
  • PORTFOLIO
    • ALL
    • TOWN
    • COUNTRY
  • SERVICES
  • EDITORIAL
  • PRACTICE
    • ABOUT
    • LATEST
    • RECRUITMENT
    • TESTIMONIALS
  • CONTACT
House in Hammersmith
House in Hammersmith

House in Hammersmith

Hammersmith and Fulham

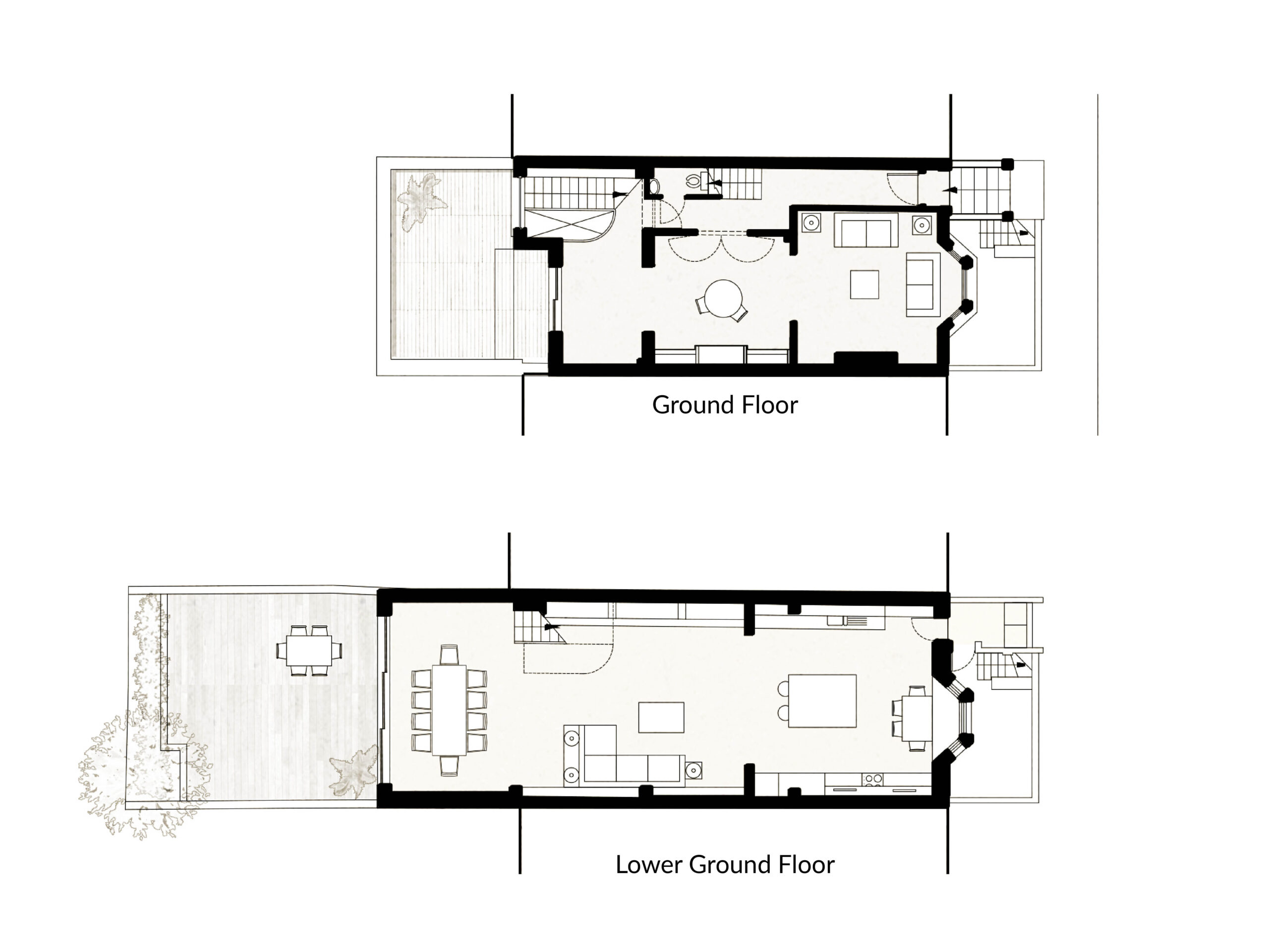
Project summary: A two storey extension including the creation of a feature staircase and complete internal re-modelling of a family home in Hammersmith & Fulham, London

 

In addition to the construction of a sizeable garden extension, a valuable joint planning approval was successfully secured enabling the construction of a first floor side return extension. This offered the chance to re-plan the ground and lower ground floor with the introduction of a dramatic new feature staircase and void.

The house is also being completely re-planned and refurbished on the upper levels.

 

Click the Links to view articles in Architectural Digest and Porter Magazine

 

Status: Completed.

House in Hammersmith
House in Hammersmith House in Hammersmith
House in Hammersmith House in Hammersmith
House in Hammersmith House in Hammersmith
House in Hammersmith House in Hammersmith
House in Hammersmith House in Hammersmith
House in Hammersmith
House in Hammersmith
House in Hammersmith
Alex Tart Architects
Copyright © 2026 Alex Tart Architects
Alex Tart Architects is a Limited Company
Registration No: 08710583 VAT No: 192158496

peinterest-logo instagran-logo riba arb